Indeling VW-J6RZD
Algemeen
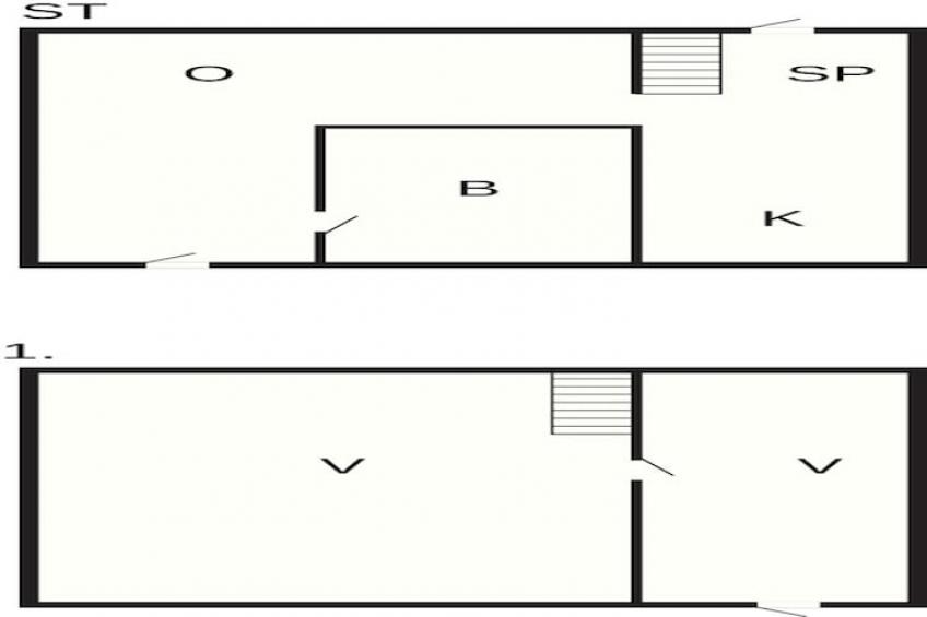
Deze vakantiewoning voor 4 personen heeft een badkamer en twee slaapkamers en beschikt over een tweepersoonsbed en twee eenpersoonsbedden. De vakantiewoning is voorzien van een TV. Daarnaast is er een set tuinmeubelen, een tuin en een terras. De badkamer is voorzien van een douche en een toilet.
De vakantiewoning beschikt over een koel- en vriescombinatie en een internetaansluiting (draadloos).
Keuken
De keuken is voorzien van een oven en een vaatwasser.
Adres
Het adres en de contactgegevens van de eigenaar van VW-J6RZD ontvangt u via de verhuurder, nadat u de accommodatie gereserveerd heeft.
Uitgebreide informatie
Dieses charmante Stadthaus aus dem Jahr 2024, das ab Mitte Januar 2025 zu vermieten ist, ist der perfekte Rückzugsort für Familien, die Komfort und Stil suchen. Das 74 m² große Haus verfügt über eine helle Wohnküche, die nahtlos in eine sonnige Terrasse übergeht, die zum Essen im Freien und zum Entspannen einlädt. Das gemütliche Fernsehzimmer lädt zum Entspannen nach einem erlebnisreichen Tag ein, und das geschmackvoll geflieste Badezimmer verleiht einen Hauch von Luxus. Im ersten Stock befindet sich ein charmantes Hauptschlafzimmer an einem Ende, während auf der anderen Seite zwei bequeme Einzelbetten stehen. Das schöne Erkerfenster bietet eine atemberaubende Aussicht und führt zu einem privaten Balkon. Das Haus ist mit modernen Annehmlichkeiten wie einer Fußbodenheizung, einer Luft/Wasser-Wärmepumpe und einem 145 m² großen Garten ausgestattet, der eine warme und einladende Atmosphäre schafft. Nur 700 Meter vom Strand Liseleje entfernt, der für seine kinderfreundlichen Sandstrände bekannt ist, ist dieses Stadthaus ein idealer Ort für Familien, die einen Strandurlaub genießen möchten. Egal, ob Sie die Umgebung erkunden oder einfach nur entspannen möchten, dieses Haus ist der perfekte Ausgangspunkt für Ihren Urlaub.A refundable deposit might be charged closer to your check-in date. The security deposit ensures a smooth stay and covers any additional services or consumption charges.This deposit covers utilities consumed during your stay and any additional services that may be taken.The final amount will be adjusted based on actual meter readings, actual usage of extra services, and any remaining balance will be refunded within 21 days after checkout.This deposit simply acts as a prepayment for charges that you would anyways pay for, ensuring a seamless stay and check-out experience.
Bijzonderheden
Deze woning wordt vanwege de rust niet verhuurd aan groepen jongeren
Indeling
- Terras
- Tuin
- Tuinmeubilair
- Lucht-water warmtepomp
- Oven
- Afwasmachine
- Koel-/vriescombinatie
- TV
- 2-pers. bed
- 2x 1-pers. bed
- Wasbak
- Douche
- Toilet
In de omgeving van VW-J6RZD
Op 2 kilometer van VW-J6RZD treft u één of meerdere restaurants. Daarnaast is er een meer/open water op minder dan 700 meter. Een supermarkt is in de buurt, op 2 kilometer. Lekker relaxen kan ook, want in de buurt van VW-J6RZD in Liseleje kunt u naar het water.
- Restaurant (2 km)
- Supermarkt (2 km)
- Water (700 m)
-
Deze vakantiewoning -
Vakantiewoningen in de buurt
Prijs en beschikbaarheid
Om de exacte prijs te bepalen, dient u een aankomstdatum hieronder te selecteren. Mogelijke extra kosten of optionele kosten ter plaatse, treft u aan onder de kalender.
In de onderstaande kalender ziet u de beschikbaarheid van VW-J6RZD in Liseleje. De nog beschikbare aankomstdatums zijn met donkergroen gemarkeerd. De lichtgroene markering geeft de dagen aan waarop u in deze woning kunt verblijven. Op de rood gemarkeerde datums is de woning helaas al bezet en op de grijs gemarkeerde datums is de beschikbaarheid nog niet bekend.
- Beschikbaar
- Aankomst mogelijk
- Bezet
- Nog niet bekend
In onderstaand overzicht ziet u de beschikbare periodes en de prijs. Via de knop 'Boek nu' kunt u gemakkelijke uw boeking maken via onze beveiligde verbinding; met al uw gegevens wordt zorgvuldig omgegaan.
| Verblijfsduur | Aankomst | Vertrek | Prijs | ||
|---|---|---|---|---|---|
Kosten ter plaatse
| Verplicht | |
|---|---|
| Elektriciteit | DKK 3,40 per kWh |
| Water | DKK 90 per m3 |
| Optioneel | |
|---|---|
| Badhanddoeken | Inclusief in het geval dat u een linnenpakket huurt |
| Bedlinnen | DKK 155 per persoon per verblijf |
| Eindschoonmaak | DKK 1.040 of dient het zelf te doen |
| Keukenlinnen | Inclusief in het geval dat u een linnenpakket huurt |
| Kinderbed | DKK 110 per verblijf |
| Kinderstoel | DKK 110 per verblijf |
Betalingsvoorwaarden en -termijnen
Binnen zeven dagen een aanbetaling van 30% van het totaalbedrag en eventuele annuleringsverzekering. De tweede betaling is uiterlijk zes weken voor vertrek.
Betaalt u in twee termijnen, dan ontvang u een week voor het verstrijken van de tweede termijn een herinnering per e-mail. Vertrekt u binnen zes weken, dan moet de betaling in één keer voldaan worden. Bij een vertrek binnen veertien dagen moet de betaling in één keer en via creditcard, PayPal, iDEAL (alleen Nederland) of Mister Cash (alleen België) voldaan worden.
voor een weekend
- 4
- 2
- 0
Betalen via
Zorgeloos boeken
Als u nog vragen heeft over dit vakantiehuis of hulp nodig heeft bij het reserveren, neem dan gerust contact met ons op.
Stel een vraag