Indeling 110561
Algemeen
Deze vakantiewoning voor 3 personen heeft een badkamer en een slaapkamer en beschikt over een tweepersoonsbed en een eenpersoons slaapbank. De vakantiewoning is voorzien van een videorecorder, twee open haarden, een TV, twee kachels, een DVD-speler, een CD-speler en een radio. Daarnaast is er een tuin en een fiets en zijn er twee terrassen en drie sets tuinmeubelen. Uw auto kunt u parkeren op een parkeerplaats. De badkamer is voorzien van twee wastafels, een haardroger en een douche.
De vakantiewoning beschikt over een koelkast, een vriezer en een internetaansluiting (draadloos).
Kinderen
Speciaal voor (kleine) kinderen is er een babybed en een kinderstoel.
Keuken
De keuken is voorzien van een oven, een koffiezetapparaat, een magnetron en een vaatwasser.
Adres
Het adres en de contactgegevens van de eigenaar van 110561 ontvangt u via de verhuurder, nadat u de accommodatie gereserveerd heeft.
Uitgebreide informatie
Het vakantieappartement bevindt zich op de begane grond van een tweegezinswoning en is een goed onderhouden, liefdevol ingericht appartement.
Talrijke antieke schatten zorgen voor een charmante sfeer.
De hoogwaardige, witte keuken is voorzien van een comfortabele hoekbank en alle moderne gemakken.
De witte slaapkamer heeft een tweepersoonsbed (2,00 x 1,80 m) met goede matrassen, een grote kledingkast, een antiek kinderbedje en een kinderstoel.
De badkamer heeft een douche en een grote wastafel; het toilet is apart.
De woonkamer is comfortabel ingericht met een zithoek, een tegelkachel, satelliet-tv en een radio.
Een extra woon-/slaapkamer is beschikbaar voor een derde gast of voor een aparte slaapgelegenheid.
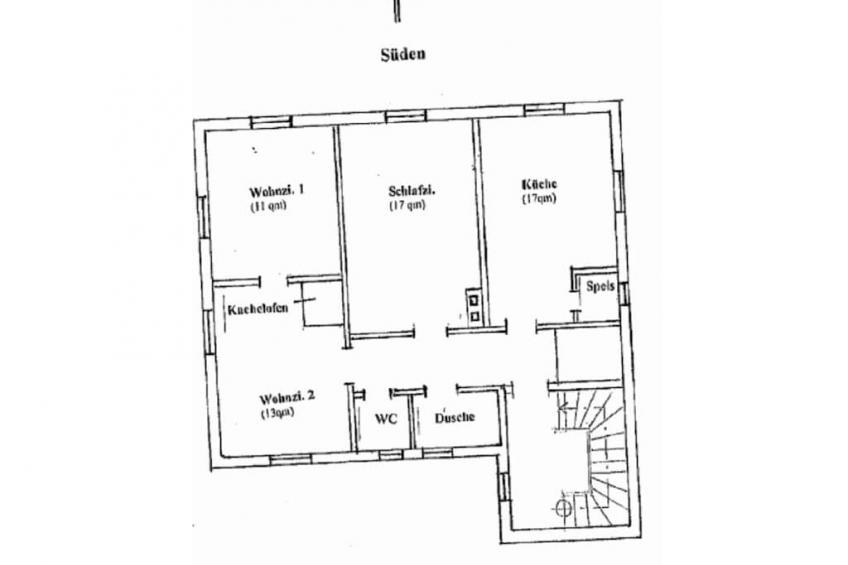
Indeling
- Internettoegang
- Internettoegang
- EHBO-post
- Terras (, eettafel, tuinmeubilair, ligbedden)
- Terras (, eettafel, tuinmeubilair, ligbedden)
- Tuin (, Centrale BBQ, Ligweide, grill, tuinmeubilair, ligbedden, Tuinhuis, Schommel)
- Parking
- Fietsen beschikbaar
- Strijkplank
- Strijkijzer
- Droogkamer
- Oplaadpaal voor elektrische auto’s
- Telefoon
- Hal
- Woonkamer
- TV
- Open haard
- DVD-speler
- Video
- Radio
- CD-speler
- Horren
- Keuken
- Kitchenette
- Eettafel
- Open haard
- Kachel
- Kookplaat
- Waterkoker
- Broodrooster
- Koffiezetapparaat
- Oven
- Grill
- Magnetron
- Afwasmachine
- Koelkast
- Vriezer
- Kinderstoel
- Horren
- Woon/slaapkamer
- Bibliotheek
- 1-pers. slaapbank
- Kachel
- Horren
- Slaapkamer
- 2-pers. bed
- Ledikant
- Horren
- Badkamer
- Douche
- Wastafel
- Haardroger
- Guest toilet
- Toilet
- Wastafel
- Berging
Mindervaliden
- Vrije Ruimte onder wastafel >= 70 cm
In de omgeving van 110561
Op 600 meter van 110561 treft u één of meerdere restaurants.
- Luchthaven (80 km)
- Skilift (15 km)
- Centrum (600 m)
- Restaurant (600 m)
-
Deze vakantiewoning -
Vakantiewoningen in de buurt
Prijs en beschikbaarheid
Om de exacte prijs te bepalen, dient u een aankomstdatum hieronder te selecteren. Mogelijke extra kosten of optionele kosten ter plaatse, treft u aan onder de kalender.
In de onderstaande kalender ziet u de beschikbaarheid van 110561 in Murnau am Staffelsee. De nog beschikbare aankomstdatums zijn met donkergroen gemarkeerd. De lichtgroene markering geeft de dagen aan waarop u in deze woning kunt verblijven. Op de rood gemarkeerde datums is de woning helaas al bezet en op de grijs gemarkeerde datums is de beschikbaarheid nog niet bekend.
- Beschikbaar
- Aankomst mogelijk
- Bezet
- Nog niet bekend
In onderstaand overzicht ziet u de beschikbare periodes en de prijs. Via de knop 'Boek nu' kunt u gemakkelijke uw boeking maken via onze beveiligde verbinding; met al uw gegevens wordt zorgvuldig omgegaan.
| Verblijfsduur | Aankomst | Vertrek | Prijs | ||
|---|---|---|---|---|---|
Kosten ter plaatse
| Verplicht | |
|---|---|
| Bedlinnen | Included |
| Water | Included |
| Optioneel | |
|---|---|
| Airconditioning | Included |
| Badhanddoeken | Included |
| Verwarming | Included |
| Inclusief | |
|---|---|
| Elektriciteit | |
| Gas/Olie | |
Betalingsvoorwaarden en -termijnen
Binnen zeven dagen een aanbetaling van 30% van het totaalbedrag en eventuele annuleringsverzekering. De tweede betaling is uiterlijk zes weken voor vertrek.
Betaalt u in twee termijnen, dan ontvang u een week voor het verstrijken van de tweede termijn een herinnering per e-mail. Vertrekt u binnen zes weken, dan moet de betaling in één keer voldaan worden. Bij een vertrek binnen veertien dagen moet de betaling in één keer en via creditcard, PayPal, iDEAL (alleen Nederland) of Mister Cash (alleen België) voldaan worden.
per week
- 3
- 1
- 0
Betalen via
Zorgeloos boeken
Als u nog vragen heeft over dit vakantiehuis of hulp nodig heeft bij het reserveren, neem dan gerust contact met ons op.
Stel een vraag