Indeling mit Terrasse, Grill und Garten
Algemeen
Deze vakantiewoning voor 6 personen heeft een badkamer en twee slaapkamers. De vakantiewoning is voorzien van een DVD-speler en een TV (internationale zenders). Daarnaast is er een balkon, een tuin, een biljart, een barbecue en een terras. Uw auto kunt u parkeren op een parking (overdekt). De badkamer is voorzien van een douche.
De vakantiewoning beschikt over een vriezer, een wasmachine, een internetaansluiting (ADSL, ISDN en draadloos).
Kinderen
Speciaal voor (kleine) kinderen is er speeltoestellen.
Keuken
De keuken is voorzien van een oven en een magnetron.
Adres
Het adres en de contactgegevens van de eigenaar van mit Terrasse, Grill und Garten ontvangt u via de verhuurder, nadat u de accommodatie gereserveerd heeft.
Uitgebreide informatie
House with table for tenis
The house is surrounded by a 40 years old pines and mountain forest, which makes it an idyllic atmosphere both in winter and in summer to escape from the city bustle, and is reason enough to enjoy the fresh air, the birds singing and the feel of what it means to be part of nature.
We have a Private dental practice in Zagreb (Privatna stomatološka ordinacija dr.Željka Stolar) with the most modern dental equipment to perform all dental procedures (cosmetic, prosthetic implant ..). During your stay in our house you can perform dental procedures in our office in Zagreb.The terrace is equipped with bbq, garden furniture, and two garden loungers. Children have at their disposal two swings.The main content:
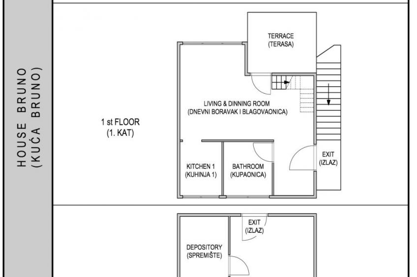
- The residential part consists of a hall, living room, 2 bedrooms in the attic, bathroom with toilet, kitchen, balcony and a little terrace
- Space for party guests on the ground floor with a separate entrance has an additional kitchen, extra bed, music, and equipment for a variety of activities: table tennis, darts, badminton, sledges, chairs and a table on the outdoor terrace, deck chairs
- Land includes private parking for 2 cars, outdoor terrace with barbecue, swings for children, and a private woods behind the building
- Additional content: LCD TV, free WIFI, SAT TV, mini stereo with CD player, heating - central heating with oil, gas cooker, electric oven, and 2 refrigeratorsVrbovsko, the second largest city in the region of Gorski kotar (Mountain district), situated half way from Zagreb and Rijeka, was first mentioned in 1481. It covers the area of 280 km² with 5100 inhabitants and 60 settlements. The main and biggest settlements are Vrbovsko, Moravice, Lukovdol, Severin na Kupi and Gomirje. A rich history resulted in valuable sacral, cultural and historical monuments and heritage that brings to this area a specific meaning. The vegetation here is rich, with large areas covered with woods, you can only hear the sounds of powerful rivers Kupa and Dobra, while Kama?nik, a true beauty, is quietly passing through the canyon.Space for party guests on the ground floor with a separate entrance has an additional kitchen, extra bed, music, and equipment for a variety of activities: table tennis, darts, badminton, sledges, chairs and a table on the outdoor terrace, deck chairs
type gebouw: eengezinshuis. perceeloppervlakte: 1000m². geen groepsboeking. geen jeugdgroepen.
In de omgeving van mit Terrasse, Grill und Garten
-
Deze vakantiewoning -
Vakantiewoningen in de buurt
Prijs en beschikbaarheid
Om de exacte prijs te bepalen, dient u een aankomstdatum hieronder te selecteren. Mogelijke extra kosten of optionele kosten ter plaatse, treft u aan onder de kalender.
In de onderstaande kalender ziet u de beschikbaarheid van mit Terrasse, Grill und Garten in Hajdine. De nog beschikbare aankomstdatums zijn met donkergroen gemarkeerd. De lichtgroene markering geeft de dagen aan waarop u in deze woning kunt verblijven. Op de rood gemarkeerde datums is de woning helaas al bezet en op de grijs gemarkeerde datums is de beschikbaarheid nog niet bekend.
- Beschikbaar
- Aankomst mogelijk
- Bezet
- Nog niet bekend
In onderstaand overzicht ziet u de beschikbare periodes en de prijs. Via de knop 'Boek nu' kunt u gemakkelijke uw boeking maken via onze beveiligde verbinding; met al uw gegevens wordt zorgvuldig omgegaan.
| Verblijfsduur | Aankomst | Vertrek | Prijs | ||
|---|---|---|---|---|---|
Kosten ter plaatse
| Verplicht | |
|---|---|
| Borg | € 100 (01-01-2024 - 31-12-2099) |
| Optioneel | |
|---|---|
| Huisdier (max. 1 dier) | € 10 per stuk per dag (01-01-2024 - 31-12-2099) |
| Verwarming | € 20 per stuk per dag (01-01-2024 - 31-12-2099) |
| Inclusief | |
|---|---|
| Badlinnen (eerste set) | |
| Bedlinnen (eerste set) | |
| Eindschoonmaak (de basisschoonmaak wordt altijd door de gast gedaan) | |
| Energiekosten | |
| Internet (Wi-Fi) | |
Betalingsvoorwaarden en -termijnen
Na bevestiging van de boeking moet binnen tien dagen een aanbetaling van 20% gedaan worden van de totale huursom. Vervolgens moet de tweede betaling uiterlijk 42 dagen voor vertrek worden voldaan. Indien u vertrekt binnen zes weken dan moet het volledige bedrag direct worden voldaan.
voor een midweek
- 6
- 2
- 0
Betalen via
Zorgeloos boeken
Als u nog vragen heeft over dit vakantiehuis of hulp nodig heeft bij het reserveren, neem dan gerust contact met ons op.
Stel een vraag