Indeling VW-DRNN5
Algemeen
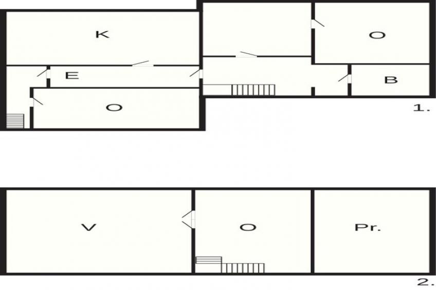
Deze vakantiewoning voor 6 personen heeft een badkamer en een slaapkamer en beschikt over een eenpersoonsbed, een tweepersoons vouwbed, een eenpersoons vouwbed en een tweepersoonsbed. De vakantiewoning is voorzien van een TV, een verwarming en een radio. Daarnaast is er een barbecue, een terras en een set tuinmeubelen. Uw auto kunt u parkeren op een parkeerplaats. De badkamer is voorzien van een douche en een toilet.
De vakantiewoning beschikt over een internetaansluiting (draadloos), een koelkast, een wasmachine en een vriezer.
Kinderen
Speciaal voor (kleine) kinderen is er een babybed.
Keuken
De keuken is voorzien van een fornuis en een kookplaat.
Adres
Het adres en de contactgegevens van de eigenaar van VW-DRNN5 ontvangt u via de verhuurder, nadat u de accommodatie gereserveerd heeft.
Uitgebreide informatie
Gemütliches Ferienhaus umgeben von einem Garten mit Obstbäumen und Beerensträuchern. Perfekt für einen Familienurlaub und ein guter Ausgangspunkt für Ausflüge und Erlebnisse in Südnorwegen und Telemark. Im Parterre Küche mit Esstisch, Badezimmer mit Dusche und ein Wohnzimmer mit einer doppelten Schlafcouch und einem Einzelbett sowie einer Büroecke mit Schreibtisch und Flachbildschirm. Im Dachgeschoss befinden sich ein gemütliches Fernsehzimmer sowie ein Schlafzimmer mit Doppelbett und kleinem Einzelbett für Kinder. Im schönen Garten gibt es eine Hängematte, einen Grill, Gartenmöbel und einen aufblasbaren Whirlpool, die Sie in den Sommermonaten kostenlos nutzen können. Im Gartenzimmer gleich neben dem Eingang fällt durch die Fenster herrliche Abendsonne ein und ermöglicht es, spätsommerliche Abende zu genießen. Etwa 3 km weiter besteht die Möglichkeit, ein Boot für schöne Boots- und Angeltouren zu mieten, ansonsten können Sie ein Taxiboot zu den Orten der Gegend nehmen. Sie können auch eine Fahrt mit der Øysang-Fähre unternehmen, Norwegens ältester Holzfähre, die regelmäßig zwischen Risør und Øysang verkehrt. Risør bietet gemütliche Straßen, Restaurants und Nischengeschäfte sowie Veranstaltungen wie das Kammermusikfestival, den Wildweinmarkt und das Holzbootfestival. Empfehlenswert ist auch die Kulturnacht Ende April. Besuchen Sie das Salzwasseraquarium in Dampskipbrygga oder nehmen Sie das Shuttleboot zum Leuchtturm von Stangholmen. Im Ferienzentrum Jegertunet (3 km) gibt es im Sommer ein beheiztes Freibad (gegen Gebühr), außerdem ein Restaurant, einen Kiosk und ein Einrichtungsgeschäft sowie Tennisplätze, ein Volleyballfeld und einen schönen Spielplatz. „Der kleine Zoo“ in Brokelandsheia ist nur 22 km entfernt. Wenn Sie ein verlängertes Erholungswochenende im Winter außerhalb der großen Winterreiseziele planen, ist dieses Haus zu empfehlen. Langlaufmöglichkeiten gibt es auf der beleuchteten Loipe bei Søndeled (17 km) und das Ski- und Aktivitätszentrum Vegårshei mit einer Alpinpiste ist nicht weit entfernt (35 km). Achtung! Das Haus verfügt über einen eigenen Brunnen mit geprüftem und genehmigtem Trinkwasser, allerdings mit viel Eisengehalt im Wasser. Die Küche hat keine Spülmaschine. Einige Zimmer haben niedrige Decken.
Indeling
- Tuinmeubilair
- BBQ
- Parking
- Fornuis
- Elektrisch
- Vriezer (100-139L)
- Wasmachine
- 15 m2
- 2-pers. vouwbed
- TV
- Noorse TV zenders (NRK en TV2)
- Radio
- 1-pers. bed
- 2-pers. bed
- Ledikant
- Wasbak
- Douche
- Toilet
- Elektrisch
- Overdekt
- 10 m2
In de omgeving van VW-DRNN5
Op 3 kilometer van VW-DRNN5 treft u één of meerdere restaurants. Daarnaast is er een meer/open water op minder dan 600 meter. Een supermarkt is in de buurt, op 5 kilometer. Lekker relaxen kan ook, want in de buurt van VW-DRNN5 in Risør kunt u naar het water.
- Centrum (5 km)
- Skilift (35 km)
- Supermarkt (5 km)
- Restaurant (3 km)
- Water (600 m)
-
Deze vakantiewoning -
Vakantiewoningen in de buurt
Prijs en beschikbaarheid
Om de exacte prijs te bepalen, dient u een aankomstdatum hieronder te selecteren. Mogelijke extra kosten of optionele kosten ter plaatse, treft u aan onder de kalender.
In de onderstaande kalender ziet u de beschikbaarheid van VW-DRNN5 in Risør. De nog beschikbare aankomstdatums zijn met donkergroen gemarkeerd. De lichtgroene markering geeft de dagen aan waarop u in deze woning kunt verblijven. Op de rood gemarkeerde datums is de woning helaas al bezet en op de grijs gemarkeerde datums is de beschikbaarheid nog niet bekend.
- Beschikbaar
- Aankomst mogelijk
- Bezet
- Nog niet bekend
In onderstaand overzicht ziet u de beschikbare periodes en de prijs. Via de knop 'Boek nu' kunt u gemakkelijke uw boeking maken via onze beveiligde verbinding; met al uw gegevens wordt zorgvuldig omgegaan.
| Verblijfsduur | Aankomst | Vertrek | Prijs | ||
|---|---|---|---|---|---|
Kosten ter plaatse
| Verplicht | |
|---|---|
| Bedlinnen | NOK 275 per verblijf |
| Elektriciteit | NOK 3,50 per kWh |
| Optioneel | |
|---|---|
| Badhanddoeken | Zelf meenemen |
| Inclusief | |
|---|---|
| Eindschoonmaak | |
Betalingsvoorwaarden en -termijnen
Binnen zeven dagen een aanbetaling van 30% van het totaalbedrag en eventuele annuleringsverzekering. De tweede betaling is uiterlijk zes weken voor vertrek.
Betaalt u in twee termijnen, dan ontvang u een week voor het verstrijken van de tweede termijn een herinnering per e-mail. Vertrekt u binnen zes weken, dan moet de betaling in één keer voldaan worden. Bij een vertrek binnen veertien dagen moet de betaling in één keer en via creditcard, PayPal, iDEAL (alleen Nederland) of Mister Cash (alleen België) voldaan worden.
per week
Gebaseerd op 35 beoordelingen
- 6
- 1
- 2
Betalen via
Zorgeloos boeken
Als u nog vragen heeft over dit vakantiehuis of hulp nodig heeft bij het reserveren, neem dan gerust contact met ons op.
Stel een vraag